Siedlungswasserwirtschaft und Wasserbau
Der Starkregenvorsorge kommt eine zunehmend größere Rolle in der Siedlungswasserwirtschaft zu. Durch eine nachvollziehbare und belastbare Generalentwässerungsplanung setzen wir den Grundstein für die weitere Entwicklung ihrer Gemeinde/Stadt. Eine zielgerichtete Grundlagenermittlung und Grundlagenaufbereitung stellt Ihnen bereits frühzeitig erste Ergebnisse für ihr Geoinformationssystem zur Verfügung. Als Endergebnis erhalten Sie eine öffentlichkeitswirksame Ausarbeitung zur Bürgerinformation und als Grundlage für zukünftige Planungen.
Zum Einsatz kommen dabei 1D, 2D oder auch gekoppelte Berechnungen auf Grundlage hochgenauer GIS Daten.
Fehlende Daten wie z.B. Informationen über die Bebauung oder auch Geländehöhen können von uns kurzfristig durch Drohnenaufmaße ergänzt werden.
Werden durch uns sowohl die straßenbau- als auch die entwässerungstechnischen Aspekte eines Projektes erarbeitet, erhalten Sie als Endprodukt ein perfekt aufeinander abgestimmtes System. Das spart Nerven und Geld bei der Bauausführung.
Unser Leistungsprektrum umfasst:
- Generalentwässerungspläne
- Kanalplanung
- Grundstücksentwässerung
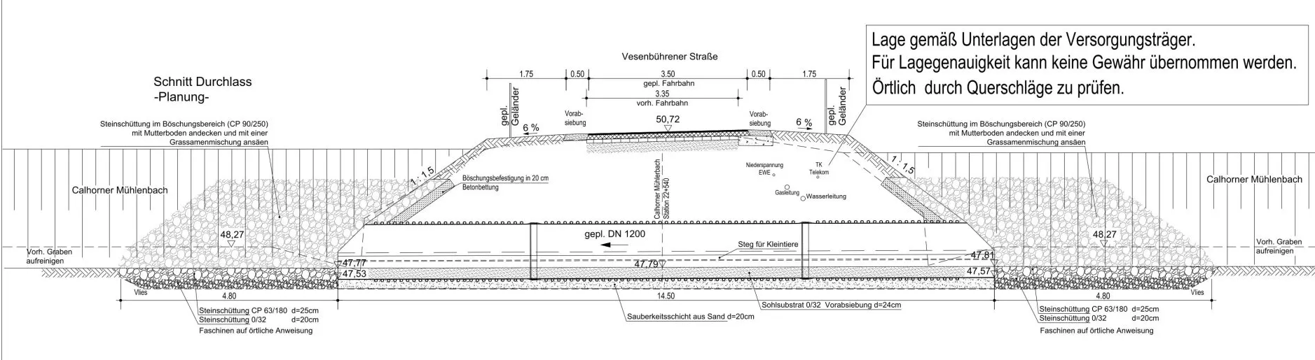
- Gewässerplanung
- Überflutungsanalysen (1D & 2D)








